About The Studio
Ashley O’Neill Architects is an emerging architecture and interior design studio based in Geelong, Australia. We are passionate about bespoke residential architecture, hospitality design, and context-driven solutions that blend minimalist aesthetics with bold, functional design.
Our practice focuses on inner-city home renovations and additions, new builds in rural Victoria, and custom hospitality interiors and architectural design. We create spaces that respond to site, climate, and client needs, with a strong emphasis on sustainable architecture, natural materials, and refined detailing. Whether you're planning a contemporary inner-city extension or a new rural retreat, we deliver thoughtful, practical solutions tailored to every project.
Architect
Ashley O’Neill, VIC Architect Registration #801344
Ashley is a registered architect based in Victoria, working across Melbourne, Geelong, and regional Western Victoria.
With over seven years of professional experience, his work spans custom homes, Passivhaus, multi-residential developments, and commercial projects including workplace, healthcare, and education. This breadth of experience informs a considered and adaptable approach to each project.
The studio was established to offer a more personal and design-focused architectural service—balancing clarity of idea with practical, buildable outcomes. Each project is approached with careful attention to site, context, and the people who will occupy the space.
Ashley works closely with clients throughout the process, developing architecture that is thoughtful, well-resolved, and responsive to budget and brief. The work is grounded in simplicity, functionality, and a refined architectural language.
Alongside practice, Ashley is engaged in architectural education. In 2026, he will teach Commercial Building Design at The Gordon TAFE in Geelong, supporting emerging designers in developing practical skills and design thinking.
The process is thorough yet informal—often beginning with a conversation. The studio provides full architectural services, from concept design through to planning, documentation, and construction, with an open and collaborative approach that allows each project to evolve clearly and confidently.
Publication
Press
2024
Editorial
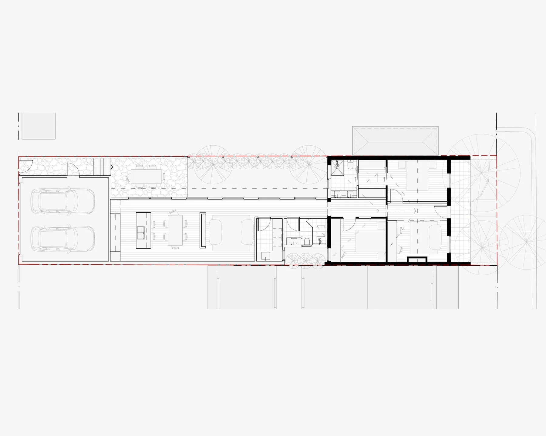
House in Preston by Ashley O'Neill Architects with Mesh Design Projects


